CKA Architectural

01323 729516

Alfriston


Barn conversion to form three houses


Planning and building regulations

Lions Cub Nursery


Conversion to 8N° flats


Planning & building regulations


Completed 2023

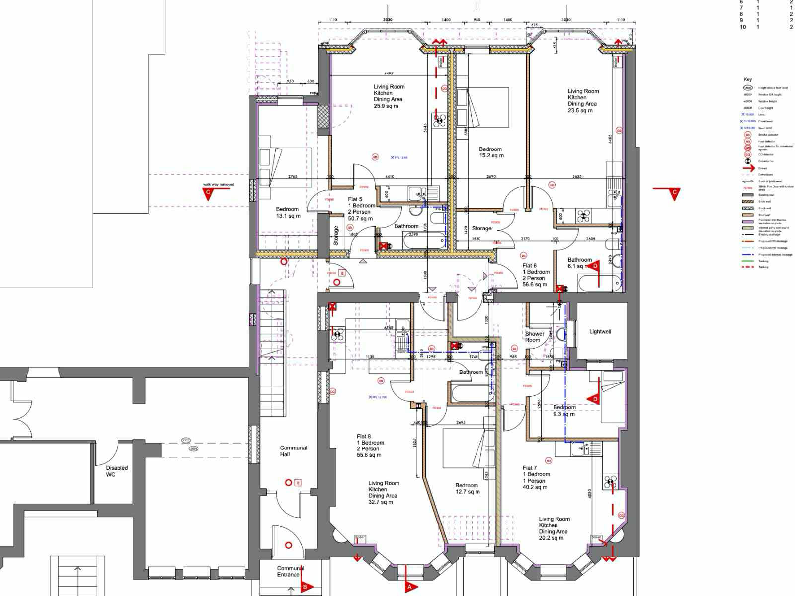
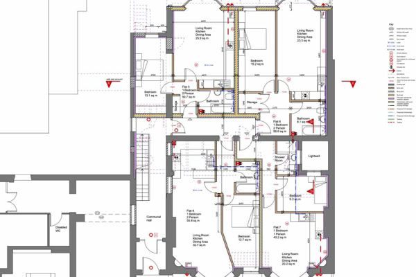
Albany Hotel


Conversion to 10N° Flats


Planning and building regulations


Under construction 2023


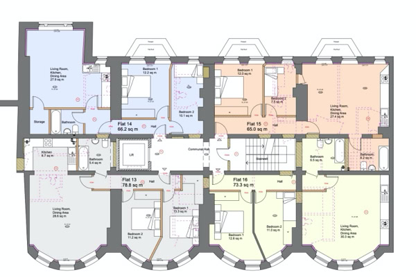
Mansion Hotel


Conversion to 21N° flats


Outline planning, approved 2020

Website copyright CKA Architectural Limited

Limited company number 11683747